- Data dodania: 2026.01.13
- Opublikowana aktualizacja : 2026-01-20 09:30:11
- Pokoje: 4
- Łazienki: 1
- Powierzchnia: 200 m²
- Rok budowy: 1972
- Status: AKTUALNE
- Miejscowość: Łask
Opis
Na sprzedaż dom w zabudowie bliźniaczej – Łask, ul. 1 Maja
Opis nieruchomości
Na sprzedaż oferujemy dom w zabudowie bliźniaczej o powierzchni użytkowej 91 m², położony przy ul. 1 Maja w Łasku. Dodatkowo na działce znajduje się osobny budynek w którym są dwa garaże oraz pokój, kuchnia i łazienka (wszystko na poziomie parteru ). Nieruchomość usytuowana jest na zadbanej działce o powierzchni 522 m². Dom wyróżnia się spokojnym sąsiedztwem oraz bliskością wszelkich udogodnień – to idealna propozycja zarówno dla rodzin, jak i osób szukających ciszy i dobrego dostępu do miejskiej infrastruktury.
Informacje techniczne o budynku
Rok budowy: 1972
Materiał konstrukcyjny: cegła
Dach: pokryty papą
Stropy: żelbetowe
Ogrzewanie: piec olejowy z zasobnikiem 2000 l, zlokalizowany w piwnicy
Media:
prąd, woda, kanalizacja, gaz w drodze
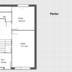
Układ pomieszczeń:
Dom został zaprojektowany w sposób funkcjonalny, z wyraźnym podziałem na strefy:
Wysoki parter – strefa dzienna:
Słoneczny salon z wyjściem na balkon-taras (zejście bezpośrednio do ogrodu).
Ustawny pokój (idealny na gabinet lub kuchnie)
Toaleta
Piętro – strefa prywatna:
Sypialnia z własnym, prywatnym balkonem.
Drugi, przestronny pokój.
Łazienka z wanną i WC
Szeroki korytarz z wnęką przygotowaną pod dużą szafę w zabudowie.
Poziom -1 (Piwnica):
Dom jest w całości podpiwniczony. Obecny właściciel miał tam kuchnię , pralnię, kotłownię oraz miejsce do przechowywania. Oczywiście istnieje możliwość adaptacji tej przestrzeni wg. Własnych potrzeb.
Stan prawny
Forma własności: pełna własność
Brak obciążeń hipotecznych
Uregulowany stan prawny działki
Informacje o działce:
Powierzchnia: 522 m²
Wymiary: około10 m szerokości, blisko 49 m długości
Na działce znajdują się:
Poza domem, na posesji znajdziemy dodatkowe niezwykle funkcjonalne przestrzenie:
Niezwykłym atutem jest niezależna „kawalerka”, która stanowi idealne miejsce do zamieszkania dla bliskiej osoby (np. seniora) lub ewentualnie może być zaadaptowana na osobne biuro. Składa się ona z dużego pokoju, oddzielnej kuchni oraz łazienki. Do środka prowadzi sień z miejscem na szafy, a wewnątrz znajduje się przestronny korytarz, który również pozwala na świetną aranżację dodatkowej przestrzeni do przechowywania. Całość można nowocześnie urządzić, co prezentujemy na dołączonym do oferty filmie z wizualizacją. Co ważne, ogrzewanie tego drugiego budynku również jest zasilane z tego samego systemu grzewczego co główny budynek.
Dodatkowo nieruchomość posiada dwa garaże w bryle dodatkowego budynku. Zostały one rozplanowane bardzo praktycznie: jeden posiada wjazd od strony podwórka, natomiast drugi – od strony ulicy Czarnieckiego. Takie rozwiązanie daje świetne możliwości ewentualnej adaptacji jednego z garaży na działalność gospodarczą z bezpośrednim dostępem od ulicy.
Na działce rosną drzewa, a wolna przestrzeń pozwala na urządzenie przytulnego ogrodu.
Lokalizacja
Dom znajduje się na cichym i spokojnym osiedlu domów jednorodzinnych i bloków mieszkalnych. To lokalizacja, która zapewnia komfort codziennego życia , gdzie wszędzie dojdziesz pieszo:
Sklep Mleczak z lokalnymi produktami – tuż obok
Supermarket, apteka, ryneczek i przychodnia – około 3 min pieszo
Siłownia – w bardzo bliskiej odległości
W okolicy znajdują się również przedszkola, szkoły i przystanki komunikacji miejskiej
Dla kogo i dlaczego warto wybrać ten dom?
To doskonała propozycja dla:
Rodzin z dziećmi, które potrzebują bliskości szkół i infrastruktury miejskiej.
Rodzin wielopokoleniowych – dodatkowe mieszkanie pozwala być blisko siebie, zachowując pełną prywatność.
Osób pracujących zdalnie – możliwość aranżacji osobnego, cichego gabinetu poza głównym domem.
Przedsiębiorców – budynki gospodarcze i garaż z osobnym wjazdem to idealne miejsce na Twój biznes.
Dlaczego warto?
Nieruchomość oferuje ogromny potencjał aranżacyjny. Lokalizacja jest idealna – mieszkasz w spokoju, mając centrum życia codziennego na wyciągnięcie ręki. Rozwiązań na zagospodarowanie tej przestrzeni jest wiele, wszystko zależy od Twojej wizji
Wynagrodzenie biura płaci Sprzedający!
W celu uzyskania większej ilości informacji proszę o kontakt telefoniczny od poniedziałku do soboty w godzinach 9:00-19:00.
Pośrednik odpowiedzialny zawodowo ( nr licencji: 28294 )
Justyna Stolarek
House & Flat
Wideo
https://youtu.be/yizyFpaRedwTen obiekt jest aktualnie dostępny w naszym biurze House&Flat Justyna Stolarek. Nieruchomość jest dostępna za 530 000 zł. Nieruchomość posiada 4 sypialni, 1 łazienka oraz ma 200 m². Nieruchomość została wybudowana w 1972 roku.
Jeśli chcesz dowiedzieć się więcej na temat tej nieruchomości, skontaktuj się z nami, lub wypełnij formularz kontaktowy.
[wpforms id="1601"]
















